Nồi Hơi Ống Nước Đốt Đa Nhiên Liệu
Mã sản phẩm: SP005
Công suất từ 150 đến 1000 BHP
Ưu điểm:
Trước bài toán chi phí nhiên liệu hóa thạch (dầu, gas) ngày càng leo thang, Nồi hơi ống nước đốt đa nhiên liệu (Biomass) là giải pháp gia nhiệt mang tính chiến lược, giúp doanh nghiệp cắt giảm tới 40-60% chi phí vận hành. Với dải năng suất sinh hơi mạnh mẽ từ 2.000 đến 30.000 kg/h, dòng sản phẩm BB Series do Cơ Nhiệt Lạnh Hồng Nhựt cung cấp được thiết kế chuyên biệt để tận dụng tối đa các nguồn nhiên liệu sinh khối giá rẻ, thân thiện với môi trường mà vẫn đảm bảo hiệu suất sinh hơi ổn định và liên tục cho các nhà máy quy mô lớn.
Được thiết kế dựa trên các tiêu chuẩn áp lực khắt khe (ASME), hệ thống nồi hơi ống nước đa nhiên liệu mang lại hiệu quả kinh tế và kỹ thuật vượt trội:
Thay vì phụ thuộc vào một nguồn đốt duy nhất, buồng đốt của hệ thống được thiết kế linh hoạt, thể tích cực lớn để xử lý hiệu quả các loại nhiên liệu rắn có nhiệt trị và độ ẩm khác nhau (< 35%). Doanh nghiệp có thể tận dụng các nguồn phế phẩm công/nông nghiệp sẵn có tại địa phương như:
Dăm gỗ (Wood chips), mùn cưa ép, viên nén sinh khối (Wood pellets).
Trấu rời, trấu ép, bã mía.
Than đá hoặc các loại rác thải nông nghiệp khác.
Việc đốt nhiên liệu rắn thường sinh ra nhiều tro xỉ. Để giải quyết vấn đề này, lò hơi được thiết kế với chùm ống nước đối lưu có bước ống và không gian sắp xếp tối ưu.
Buồng đốt không gian lớn: Giúp ngọn lửa lưu lại lâu hơn, đốt cháy triệt để nhiên liệu sinh khối, hạn chế lượng tro bay và cặn bám lên bề mặt ống.
Tuổi thọ bền bỉ: Cấu trúc ống nước sinh hơi tuần hoàn tự nhiên, chịu được áp suất thiết kế lên đến 17 Bar, vận hành ổn định trong điều kiện tải nhiệt cao liên tục.
Khác với các lò hơi đốt củi thủ công truyền thống, hệ thống nồi hơi đa nhiên liệu của Hồng Nhựt là một tổ hợp tự động hóa cao:
Tích hợp băng tải, vít tải cấp nhiên liệu tự động dựa trên cảm biến áp suất hơi.
Tích hợp hệ thống khử bụi (cyclone, tháp lọc ướt hoặc lọc bụi túi vải) giúp khí thải đầu ra đạt chuẩn môi trường.
Hệ thống cào tro, thải xỉ cơ giới hóa, giảm thiểu tối đa sức lao động cho công nhân vận hành.
Nhờ công suất lớn và chi phí tạo hơi cực thấp, lò hơi ống nước đốt Biomass là "trái tim" không thể thiếu trong các ngành công nghiệp tiêu thụ lượng hơi khổng lồ:
Nhà máy sản xuất giấy, bao bì carton, bột giấy.
Nhà máy dệt nhuộm, may mặc quy mô lớn.
Các tổ hợp chế biến thức ăn chăn nuôi, sấy nông sản (lúa, cà phê, cao su).
Nhà máy chế biến thực phẩm, đường, bột ngọt.

| MODEL | BB150 | BB200 | BB300 | BB400 | BB500 | BB600 | BB800 | BB1000 | BB1200 | BB1500 | BB2000 |
|---|---|---|---|---|---|---|---|---|---|---|---|
| Nhiên liệu (FUEL) | BIOMASS (Sinh khối) | ||||||||||
| Năng suất hơi (kg/h) | 2000 | 3000 | 4000 | 6000 | 7000 | 9000 | 12000 | 15000 | 18000 | 22000 | 30000 |
| Công suất nhiệt (MW) | 1,5 | 2 | 3 | 4 | 5 | 6 | 8 | 10 | 12 | 15 | 20 |
| Tổng diện tích truyền nhiệt (m2) | 120 | 150 | 220 | 330 | 400 | 500 | 600 | 750 | 1000 | 1200 | 1500 |
| Áp suất thiết kế (Bar) | 17 | 17 | 17 | 17 | 17 | 17 | 17 | 17 | 17 | 17 | 17 |
| Tổng dung tích (m3) | 5 | 6 | 8 | 10 | 12 | 15 | 18 | 22 | 26 | 30 | 35 |
| Suất tiêu thụ sinh khối (kg/h) Nhiệt trị wood chip 3200 Kcal/kg Độ ẩm < 35% Công suất lấy hơi > 60% công suất thiết kế |
600 | 900 | 1200 | 1900 | 2200 | 2700 | 3840 | 4500 | 5800 | 6600 | 9500 |
| Đường kính ống khói (mm) | 320 | 400 | 460 | 550 | 700 | 800 | 955 | 1100 | 1200 | 1300 | 1500 |
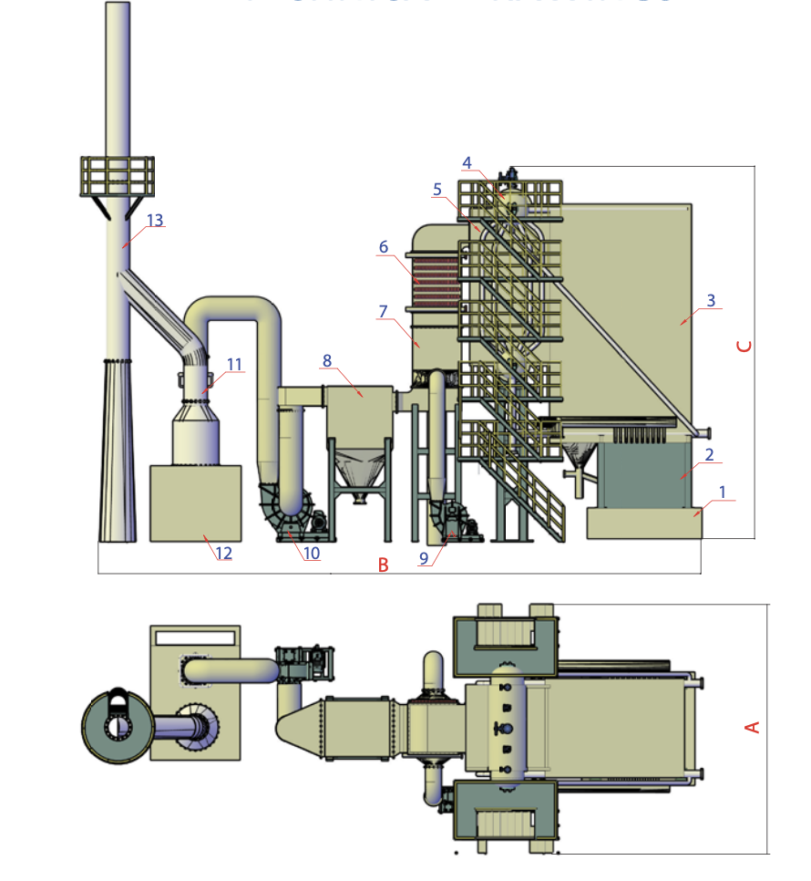
| Chiều rộng tổng thể A (mm) | 6000 | 6000 | 7000 | 7000 | 9000 | 12000 | 12000 | 15000 | 15000 | 20000 | 25000 |
| Chiều dài tổng thể B (mm) | 15000 | 20000 | 20000 | 30000 | 40000 | 50000 | 60000 | 70000 | 70000 | 80000 | 80000 |
| Chiều cao tổng thể C (mm) | 8000 | 8000 | 10000 | 12500 | 12500 | 14000 | 15000 | 16000 | 16000 | 17000 | 20000 |
| Thứ tự | Tên file | Download |
| 1 | Catalogue Nồi Hơi Ống Nước Đốt Đa Nhiên Liệu | Click download |